Bất kỳ sản phẩm cửa chống cháy nào trước khi được sản xuất đều phải lên bản vẽ chi tiết. Vậy bản vẽ cửa chống cháy là gì? Hãy cùng BK Door tìm hiểu chi tiết trong bài viết dưới đây.
Bản vẽ cửa chống cháy là gì?
Bản vẽ cửa chống cháy là tài liệu kỹ thuật mô tả chi tiết các thông số kỹ thuật và cấu trúc của cửa chống cháy. Nó được sử dụng để đảm bảo rằng cửa được thiết kế và lắp đặt đáp ứng đầy đủ các tiêu chuẩn an toàn phòng cháy chữa cháy (PCCC). Thông thường sẽ có bản vẽ tiêu chuẩn chung để khách hàng có thể hình dung, tham khảo. Tuy nhiên các kỹ sư sẽ thiết kế bản vẽ cửa sao cho phù hợp với số liệu thực tế đo đạc, theo yêu cầu khách hàng.
Nội dung chính của bản vẽ
Bản vẽ bao gồm:
- Kích thước cửa: Bao gồm chiều rộng, chiều cao, và độ dày của cửa. Kích thước phải phù hợp với yêu cầu của công trình và đảm bảo khả năng chịu lửa.
- Cấu tạo cửa:
- Lớp vật liệu: Bản vẽ mô tả chi tiết về các lớp vật liệu sử dụng, chẳng hạn như thép, gỗ chống cháy, hoặc kính chống cháy.
- Lớp cách nhiệt: Chỉ rõ vị trí và loại vật liệu cách nhiệt (như bông khoáng, tấm chống cháy) được sử dụng để tăng khả năng chịu lửa.
- Khung cửa: Thông số kỹ thuật của khung cửa (thường bằng thép hoặc gỗ đã qua xử lý) và cách nó gắn vào tường.
- Phụ kiện cửa:
- Bản lề, tay nắm thoát hiểm, tay co thủy lực, và khóa cửa chống cháy. Các phụ kiện này phải được mô tả chi tiết trong bản vẽ để đảm bảo cửa có thể hoạt động trơn tru và tuân thủ quy chuẩn an toàn.
- Tiêu chuẩn chống cháy: Bản vẽ thường ghi rõ cấp độ chống cháy mà cửa có thể đạt được (EI60, EI70, EI90, EI120). Nghĩa là cửa có thể chịu lửa trong bao nhiêu phút.
- Cách lắp đặt: Một số bản vẽ còn cung cấp hướng dẫn về cách lắp đặt cửa chống cháy. Để đảm bảo rằng cửa được cài đặt đúng kỹ thuật và đảm bảo khả năng bảo vệ an toàn tối đa.
Vai trò của bản vẽ
- Đảm bảo đúng thiết kế: Giúp các bên liên quan (nhà thầu, kỹ sư, kiểm định viên) nắm rõ cách cửa chống cháy được sản xuất và lắp đặt.
- Kiểm định an toàn: Là cơ sở để cơ quan chức năng kiểm tra và xác minh tính phù hợp của cửa với tiêu chuẩn PCCC.
- Thi công đúng tiêu chuẩn: Giúp thợ lắp đặt nắm được các yêu cầu kỹ thuật cần thiết, tránh sai sót trong quá trình thi công.
Mẫu bản vẽ cửa ngăn cháy chi tiết
Tùy vào mỗi loại cửa mà bản vẽ sẽ hiển thị thông tin chi tiết về từng loại cửa đó. Cụ thể như sau:
Bản vẽ cửa ngăn cháy 1 cánh
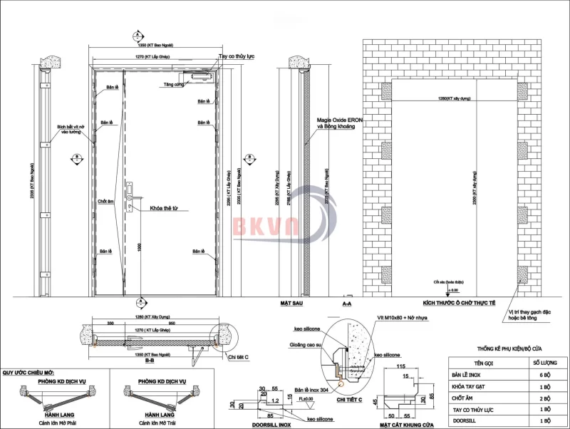
Cửa chống cháy 1 cánh là loại cửa phổ biến, có thiết kế đơn giản hơn cửa chống cháy 2 cánh

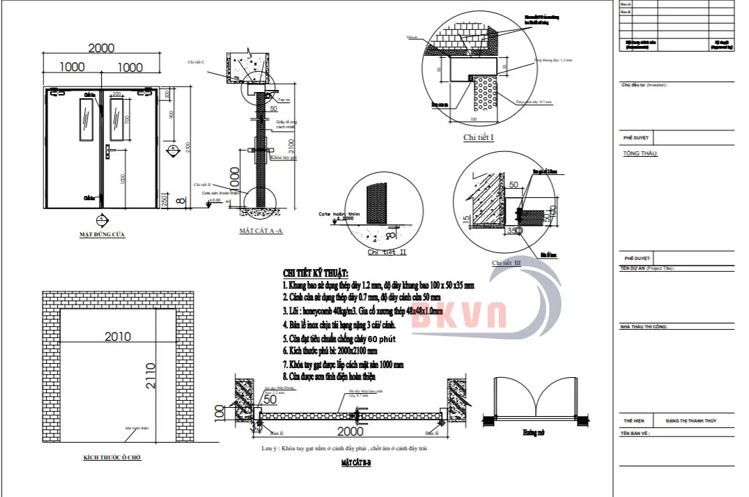
Bản vẽ cửa ngăn cháy 2 cánh
Cửa chống cháy 2 cánh được thiết kế với kích thước lớn hơn, tối ưu cho không gian rộng. Dưới đây là bản vẽ chi tiết.

Bản vẽ cửa ngăn cháy 2 cánh lệch
Đây là sản phẩm đặc biệt cho những không gian sở hữu khung cửa không the kích thước tiêu chuẩn. Giúp bạn có phương án tối ưu hơn trong nhiều tình huống. Dưới đây là bản vẽ cửa thép chống cháy 2 cánh lệch.

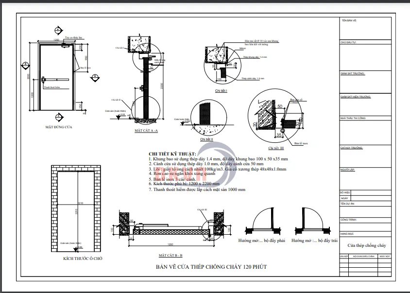
Bản vẽ cửa ngăn cháy theo số phút chống cháy
Cửa chống cháy có khả năng chịu nhiệt từ 60 đến 120 phút. Cụ thể với các loại cửa này sẽ có bản vẽ riêng và trên từng bản vẽ sẽ thể hiện chi tiết thời gian chịu nhiệt. Cùng với đó là các thông số kỹ thuật. Dưới đây là một số bản vẽ theo thời gian chống cháy.




Kết luận
Khi thi công công trình hay 1 dự án nào đó, việc lên bản vẽ là điều cần thiết. Nó không chỉ giúp chúng ta dễ dàng trao đổi các số liệu, thiết kế, Mà nó còn giúp đẩy nhanh tiến độ thi công. Trên đây là thông tin về bản vẽ, các bản vẽ mẫu tại cửa chống cháy Bách Khoa. Hy vọng những thông tin trên sẽ giúp bạn hiểu rõ hơn cũng như có tài liệu tham khảo. Theo dõi chúng tôi để nhận thêm nhiều thông tin hữu ích khác nhé.
Liên hệ ngay Bách Khoa Việt Nam – Nhận báo giá cửa chống cháy Uy Tín – Chất Lượng – Giá Cạnh Tranh Nhất Thị Trường Việt Nam!
HN: 0967 505 030 – HCM: 093.146.8833
Tổng đài CSKH 24/7: 0988.750.570
Email: baogia@bkvietnam.vn


